การผลิตฝาขวดน้ำพลาสติกในปัจจุบัน มักนิยมใช้การ ฉีดพลาสติก เป็นส่วนใหญ่ ซึ่งในระยะหลังมานี้ มีการออกแบบฝาภายนอกให้มีรูปทรงแปลกๆมากมาย แต่ในส่วนของกลไกการล็อคฝากับขวด ยังนิยมใช้การหมุนเกลียว เพราะออกแบบง่ายราคาไม่แพงและสามารถกันการรั่วซึมได้เป็นอย่างดี
แม่พิมพ์ฉีดพลาสติกโดยทั่วไปมักใช้การปลดชิ้นงานด้วยเข็มกระทุ้ง ซึ่งแม่พิมพ์ฝาขวด
ก็ใช้หลักการเดียวกัน เพียงแต่เพิ่มระบบกลไกในการปลดชิ้นงานให้เป็นลำดับมากขึ้น เนื่องจากมีการคลายเกลียวหรือในบางรูปแบบอาจออกแบบให้มี snap lock ทำให้ไม่สามารถปลดชิ้นงานออกจากแม่พิมพ์ได้ด้วยการกระทุ้งเพียงครั้งเดียว

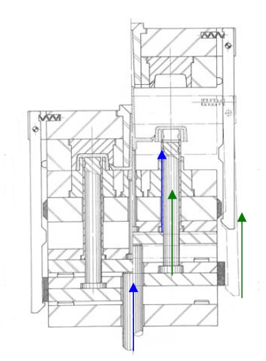
ขั้นตอนการปลดชิ้นงานออกจากแม่พิมพ์ เริ่มจากในภาพที่ 1 ซ้าย แสดงช่วงเวลาที่แม่พิมพ์เปิดออกเพื่อปลดชิ้นงาน ejector pin และ sliding sleeve จะถูกดันขึ้นพร้อมกันโดยมีชิ้นงานติดไปด้วย แรงที่ใช้ในการขับเคลื่อนนี้ได้มาจากจังหวะการเปิดแม่พิมพ์ของเครื่องฉีดพลาสติก โดยกลไกการขับเคลื่อนนี้จะถูกติดตั้งไว้ที่ด้านข้างของแม่พิมพ์ ภาพที่ 2 ภาพตัดด้านซ้ายแสดงจังหวะที่แม่พิมพ์ปิด ส่วนภาพตัดด้านขวาเป็นตำแหน่งเมื่อแม่พิมพ์เปิด

ในจังหวะที่แม่พิมพ์เปิดออก แขนกระทุ้งจะลากแผ่นกระทุ้งตามไปด้วย ทำให้ ejector pin ดันชิ้นงานออกมาเป็นการปลดชิ้นงานขั้นตอนแรก(ลูกศรสีเขียว) เมื่อถึงตำแหน่งที่กำหนด แขนกระทุ้งจะถูกดันให้ง้างออกจากแผ่นกระทุ้ง จากนั้นเครื่องฉีดพลาสติกจะกระทุ้งชิ้นงาน ส่งผลให้ sliding sleeve ทำงาน ดันปลดชิ้นงานออกจาก ejector pin (ลูกศรสีน้ำเงิน) ชิ้นงานจะถูกดันออกจากแม่พิมพ์พร้อมก้าน runner เป็นการจบรอบการฉีด
ในบทความนี้เป็นเพียงหลักการทำงานเบื้องต้น ของการปลดชิ้นงานประเภทฝาขวดน้ำ ซึ่งแม่พิมพ์แต่ละแบบ ก็มีวิธีการปลดที่แตกต่างกันออกไป ขึ้นอยู่กับลักษณะชิ้นงานและผู้ออกแบบแม่พิมพ์ สำหรับผู้ปฎิบัติงานควรศึกษาทำความเข้าใจเบื้องต้นก่อนปฏิบัติงาน เพื่อป้องกันการเกิดความเสียหายกับแม่พิมพ์
Social tagging: ฉีดพลาสติก > ฉีดพลาสติกจำนวนน้อย > ฝาขวดน้ำ > รับฉีดพลาสติก > เป่าขวดพลาสติก > แม่พิมพ์ฉีดพลาสติก > แม่พิมพ์พลาสติก > แม่พิมพ์เป่าพลาสติก